SUMMARY
COMMERCIAL
RESIDENTIAL
CONTACT
NLM DESIGN
SUMMARY
COMMERCIAL
RESIDENTIAL
CONTACT
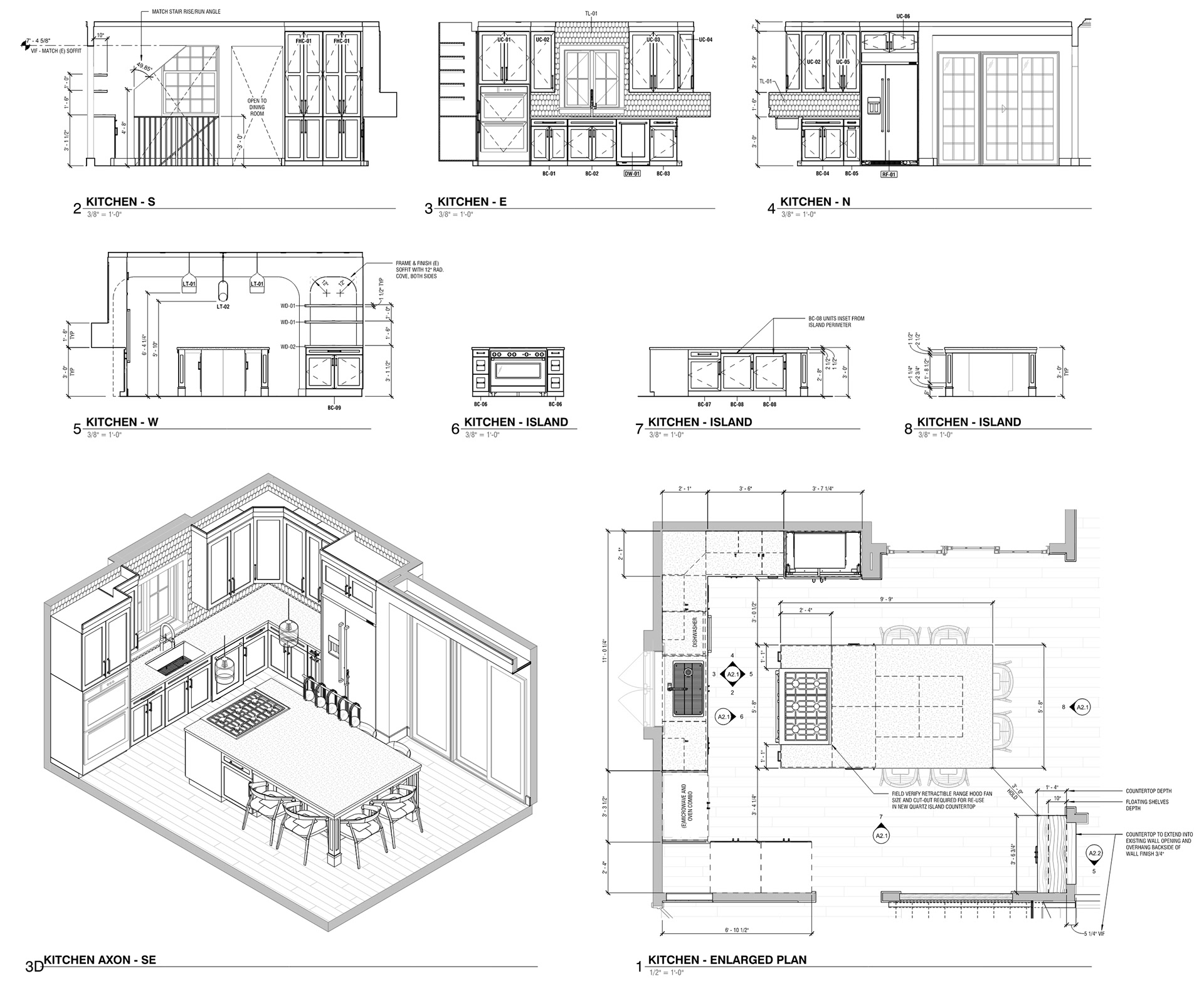
Suffolk Rd - Interior Renovation
Kitchen Drawings
Living Room Drawings
Concept Rendering
Concept Rendering
Concept Rendering
Concept Rendering
↑
Back to Top