SUMMARY
COMMERCIAL
RESIDENTIAL
CONTACT
NLM DESIGN
SUMMARY
COMMERCIAL
RESIDENTIAL
CONTACT
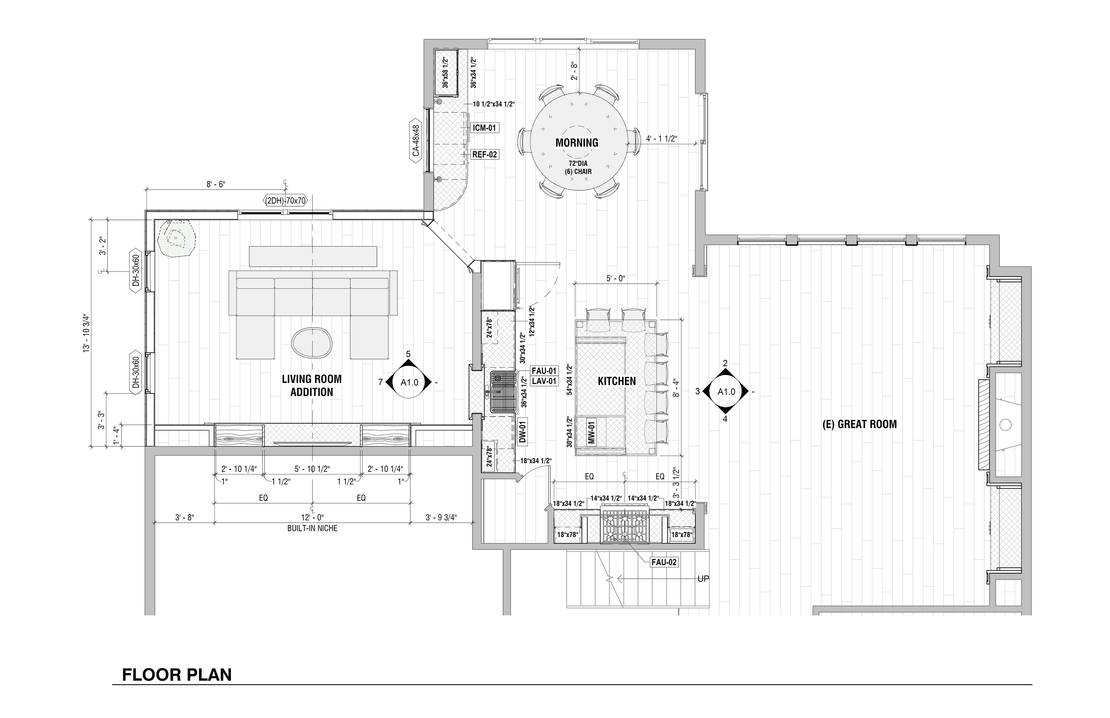
Guilford Rd - Interior Remodel
↑
Back to Top