SUMMARY
COMMERCIAL
RESIDENTIAL
CONTACT
NLM DESIGN
SUMMARY
COMMERCIAL
RESIDENTIAL
CONTACT
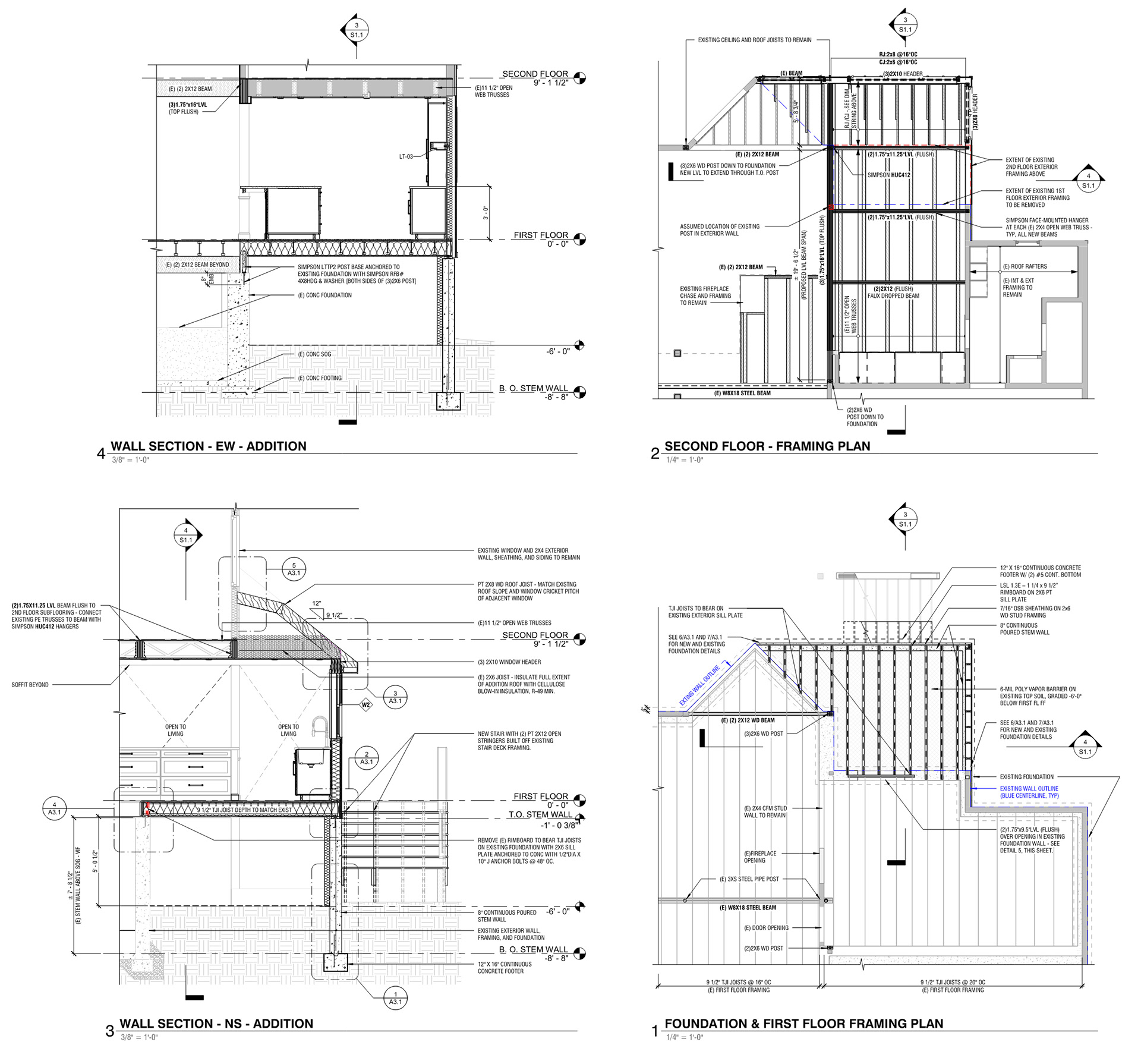
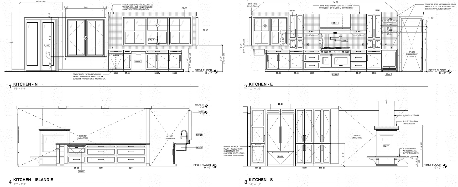
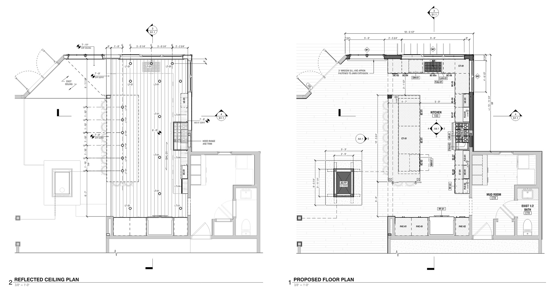
Goldenseal WY- Addition
Concept Renderings
↑
Back to Top