SUMMARY
COMMERCIAL
RESIDENTIAL
CONTACT
NLM DESIGN
SUMMARY
COMMERCIAL
RESIDENTIAL
CONTACT
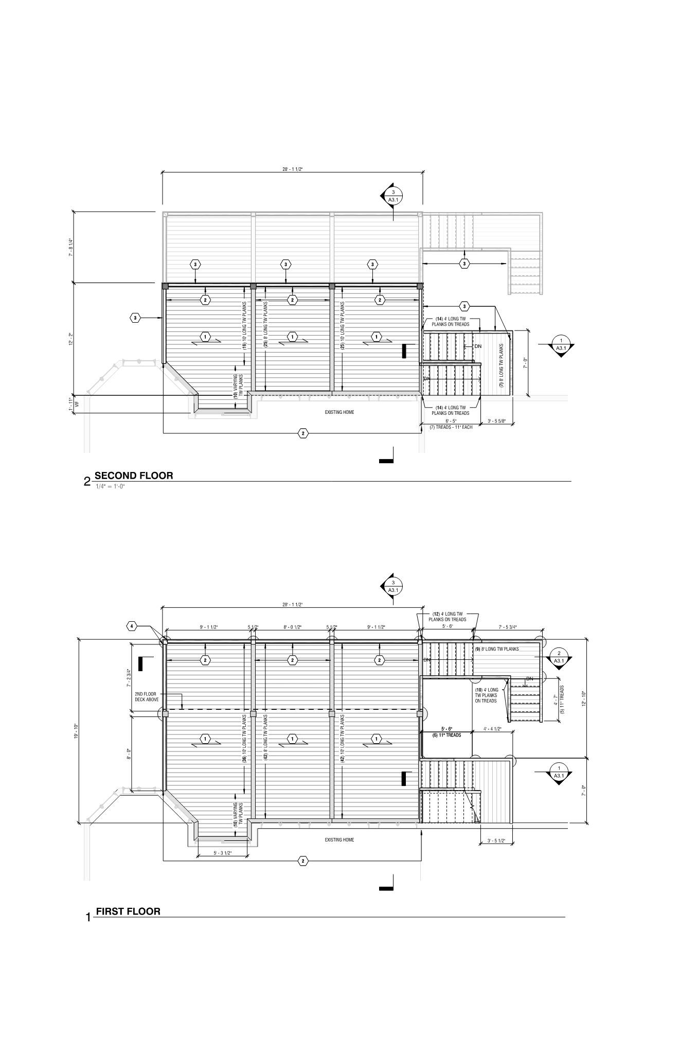
Bryn Du Dr - Deck Addition
↑
Back to Top