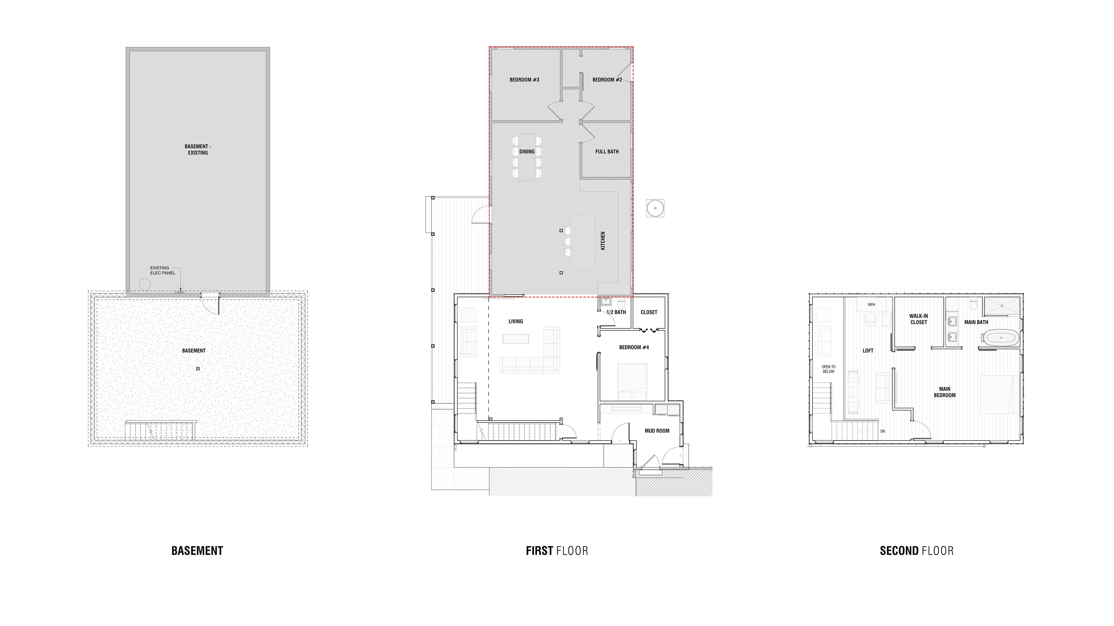
1,800 SF, 2-story addition in New Albany, Ohio.
Preliminary concept rendering.
Preliminary concept walk-through visualization.